Buy
Lindengracht 186, Amsterdam
€1,550,000.00 Too late
EXCEPTIONALLY CHARMING 4-BEDROOM CANAL HOUSE ON OWN GROUND IN THE HEART OF THE JORDAAN
A unique opportunity! This charming 132 m² canal house, divided over four levels and featuring four bedrooms, is located on the popular Lindengracht. The property has been fully renovated and combines historic charm with modern comfort. You'll enjoy a surprising amount of space, a charming patio, and a sunny roof terrace. Authentic beamed ceilings give the entire house character, while the beautiful wisteria cloaks the facade in greenery almost year-round. Set up a chair by the door, let yourself be carried away by the lively street life, and chat with the neighbors – you'll instantly feel at home here.
LAYOUT
Upon entering, the high-ceilinged entrance hall immediately catches your eye, beautifully setting the ambiance of the house. Both floors are accessible from here: a few steps down lead to the spacious kitchen-diner with a warm and homely feel, while a few steps up lead to the bright, spacious living room. The split-level layout creates a playful and spacious feel with plenty of natural light.
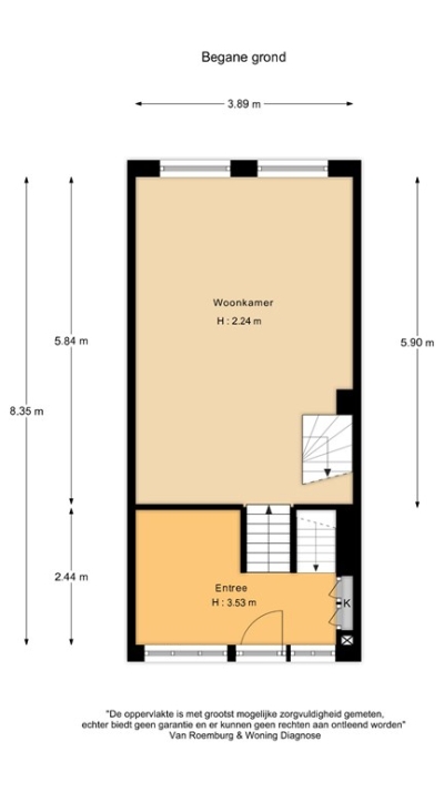
Ground Floor
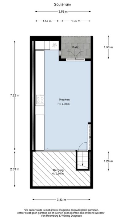
The spacious and practically designed kitchen/diner is equipped with a freezer, refrigerator, dishwasher, Quooker with flushing tap, an extra-wide gas cooktop, and oven. Authentic elements such as the beamed ceiling, granite countertops, and oak flooring give the space a robust and warm feel. There's ample storage space, including two extra-deep drawers with handy storage behind them. At the rear is a separate storage cupboard, and double doors open onto the intimate patio, a sheltered spot for enjoying the outdoors in peace.
Main Floor
The living room on the ground floor is bright and spacious, with views of both the green back garden and the lively Lindengracht. There's room for a large lounge sofa and comfortable armchairs, making it the ideal space for relaxing or entertaining.
First Floor
A staircase leads to the first floor, where the master bedroom and bathroom are connected via a hallway with a separate toilet and a spacious laundry room. Cleverly placed designer sliding doors ensure an optimal layout. The luxurious bathroom features an infrared sun shower, rain shower, bathtub, double sink, towel radiator, and underfloor heating. Two large sliding windows facing the street provide abundant natural light. The master bedroom at the rear is exceptionally spacious and overlooks the greenery. Two large windows provide ample light, and a stylish custom-built wardrobe has been built around the bed, complemented by a dresser in the same style. In spring, you can enjoy the beautiful blossoms of the large tree in the backyard.
Second Floor
On the second floor, you'll find a spacious bedroom and a bright office, previously one large space. The bedroom features a generous wardrobe wall, while the office benefits from a charming dormer window with two French windows, making it ideal for an office or guest space.
Third Floor
The third floor comprises a beautiful bedroom that could also serve as a studio. This floor features a private kitchenette and sliding doors leading to the spacious roof terrace. Here you can enjoy the sun, greenery, and tranquility in complete privacy.
OUTDOOR SPACES
In addition to the patio at the rear, the house boasts a lovely roof terrace on the third floor – a peaceful spot to relax in the heart of the city. And in front of the house, you can create a cozy seating area where you can experience the true Jordaan feeling on sunny days: chatting with passersby, children playing, and the lively Saturday market.
GROUND LEASE
The property is located on freehold land, so there is no leasehold.
THE NEIGHBORHOOD
The Lindengracht is located in the heart of the Jordaan, surrounded by charming cafés, leading restaurants, and unique shops. On Saturdays, there's a market right outside. The Noordermarkt, Westerstraat, and Haarlemmerdijk are within walking distance. The canal district and Central Station are just a few minutes away by bike. Tram and bus stops are nearby, as is the A10 ring road, approximately a 10-15 minute drive away. Here you'll live in one of Amsterdam's most desirable neighborhoods, where history, charm, and urban dynamism converge.
SPECIAL FEATURES
- Living area: 132 m² (NEN 2580 measurement report available)
- Entire canal house divided over 4 levels with 4 bedrooms
- Own ground, so no leasehold
- Built in 1894, exceptionally charming and renovated
- Protected cityscape (not a listed building
- Roof terrace and patio
- Located in the heart of the Jordaan district
- Delivery by arrangement
Come experience this unique home for yourself! Want to live in a prime location, with ambiance, space, and outdoor area in the Jordaan district? This is your chance. Schedule a viewing today and be amazed by this comfortable home on the Lindengracht! Lengers Housing warmly welcomes you and would be happy to show you all the possibilities of this spacious home with a personal tour.
Important information
The apartment has been measured according to the NEN 2580 standard. The measurement instructions are intended to give an indication of the usable living area, but discrepancies may occur. This information has been compiled with great care. However, no rights can be derived from it. We recommend that buyers conduct their own research into all matters that are important to them. Our office represents the seller, and for a smooth purchasing process, we advise buyers to engage a Vastgoed Ned real estate agent. The General Consumer Terms and Conditions of Vastgoed Ned apply.
A unique opportunity! This charming 132 m² canal house, divided over four levels and featuring four bedrooms, is located on the popular Lindengracht. The property has been fully renovated and combines historic charm with modern comfort. You'll enjoy a surprising amount of space, a charming patio, and a sunny roof terrace. Authentic beamed ceilings give the entire house character, while the beautiful wisteria cloaks the facade in greenery almost year-round. Set up a chair by the door, let yourself be carried away by the lively street life, and chat with the neighbors – you'll instantly feel at home here.
LAYOUT
Upon entering, the high-ceilinged entrance hall immediately catches your eye, beautifully setting the ambiance of the house. Both floors are accessible from here: a few steps down lead to the spacious kitchen-diner with a warm and homely feel, while a few steps up lead to the bright, spacious living room. The split-level layout creates a playful and spacious feel with plenty of natural light.
Ground Floor
The spacious and practically designed kitchen/diner is equipped with a freezer, refrigerator, dishwasher, Quooker with flushing tap, an extra-wide gas cooktop, and oven. Authentic elements such as the beamed ceiling, granite countertops, and oak flooring give the space a robust and warm feel. There's ample storage space, including two extra-deep drawers with handy storage behind them. At the rear is a separate storage cupboard, and double doors open onto the intimate patio, a sheltered spot for enjoying the outdoors in peace.
Main Floor
The living room on the ground floor is bright and spacious, with views of both the green back garden and the lively Lindengracht. There's room for a large lounge sofa and comfortable armchairs, making it the ideal space for relaxing or entertaining.
First Floor
A staircase leads to the first floor, where the master bedroom and bathroom are connected via a hallway with a separate toilet and a spacious laundry room. Cleverly placed designer sliding doors ensure an optimal layout. The luxurious bathroom features an infrared sun shower, rain shower, bathtub, double sink, towel radiator, and underfloor heating. Two large sliding windows facing the street provide abundant natural light. The master bedroom at the rear is exceptionally spacious and overlooks the greenery. Two large windows provide ample light, and a stylish custom-built wardrobe has been built around the bed, complemented by a dresser in the same style. In spring, you can enjoy the beautiful blossoms of the large tree in the backyard.
Second Floor
On the second floor, you'll find a spacious bedroom and a bright office, previously one large space. The bedroom features a generous wardrobe wall, while the office benefits from a charming dormer window with two French windows, making it ideal for an office or guest space.
Third Floor
The third floor comprises a beautiful bedroom that could also serve as a studio. This floor features a private kitchenette and sliding doors leading to the spacious roof terrace. Here you can enjoy the sun, greenery, and tranquility in complete privacy.
OUTDOOR SPACES
In addition to the patio at the rear, the house boasts a lovely roof terrace on the third floor – a peaceful spot to relax in the heart of the city. And in front of the house, you can create a cozy seating area where you can experience the true Jordaan feeling on sunny days: chatting with passersby, children playing, and the lively Saturday market.
GROUND LEASE
The property is located on freehold land, so there is no leasehold.
THE NEIGHBORHOOD
The Lindengracht is located in the heart of the Jordaan, surrounded by charming cafés, leading restaurants, and unique shops. On Saturdays, there's a market right outside. The Noordermarkt, Westerstraat, and Haarlemmerdijk are within walking distance. The canal district and Central Station are just a few minutes away by bike. Tram and bus stops are nearby, as is the A10 ring road, approximately a 10-15 minute drive away. Here you'll live in one of Amsterdam's most desirable neighborhoods, where history, charm, and urban dynamism converge.
SPECIAL FEATURES
- Living area: 132 m² (NEN 2580 measurement report available)
- Entire canal house divided over 4 levels with 4 bedrooms
- Own ground, so no leasehold
- Built in 1894, exceptionally charming and renovated
- Protected cityscape (not a listed building
- Roof terrace and patio
- Located in the heart of the Jordaan district
- Delivery by arrangement
Come experience this unique home for yourself! Want to live in a prime location, with ambiance, space, and outdoor area in the Jordaan district? This is your chance. Schedule a viewing today and be amazed by this comfortable home on the Lindengracht! Lengers Housing warmly welcomes you and would be happy to show you all the possibilities of this spacious home with a personal tour.
Important information
The apartment has been measured according to the NEN 2580 standard. The measurement instructions are intended to give an indication of the usable living area, but discrepancies may occur. This information has been compiled with great care. However, no rights can be derived from it. We recommend that buyers conduct their own research into all matters that are important to them. Our office represents the seller, and for a smooth purchasing process, we advise buyers to engage a Vastgoed Ned real estate agent. The General Consumer Terms and Conditions of Vastgoed Ned apply.
- 132m²Living area
- EEnergy label
- 5Rooms
- 4Bedrooms
- 1Bathroom
- 1894Construction year
- 42m²Land area
- LocationView on map
































































